top of page
PROJETS
LOGEMENT
INDUSTRIE
TERTIAIRE
EQUIPEMENTS
CHRONOLOGIE
LOCALISATION
AGENCE
CONTACT
Projets
Equipements
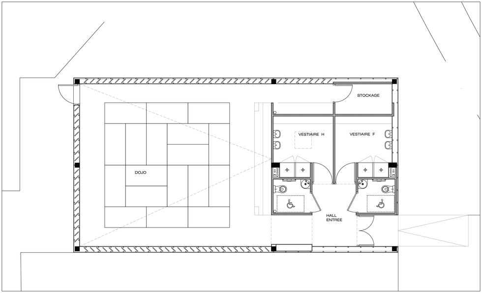
CONSTRUCTION D'UN DOJO
ESSARTS LE ROI (78)
Construction d'un DOJO aux Essarts le Roi (78)
^
NATALIS & RUPP-SCOTEE ARCHITECTES ● © 2005 - 2022
2, rue Henri Chevreau - 75020 Paris ● Tél 01.40.30.52.49
bottom of page